“年轻并充满活力”作为这栋公寓的定位,这是由建筑师CIAA设计的一间80㎡的移动公寓

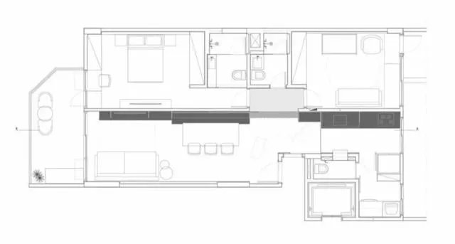
两室一厅的平面结构图,可以看出来这个户型其实会比较窄,它很长,但是相对而言会没有大空间,整体都是狭长型的。

平面图

剖面图

新旧布局图

功能色块图

轴侧图
位于里约热内卢的工作室,由于场地狭窄的现状,对Niterói公寓进行了翻新。

原始的公寓结构非常清晰,一面墙体将房间分割成多个部分,有厨房和其 他功能,改造的首要理念是,沿着共有的纵轴,改造墙体优化空间,创造新的环境。

重置功能,优化空间,通过线性逻辑分配和组织功能,明确公共区域阳台、客厅、餐厅、厨房,私人区域卧室、厕所的界限。


将基础设施设备和储物位置集中排布,节约出来相当大空间。

使用大量白色和各种其 他颜色划分空间,并且通过材质衬托自然光照的效果。

空间元素为了丰富使用的功能性,建筑师在公寓内设置了多功能工作板,这种做法不仅能限定空间,同时给空间提供了两个属性——私密性和公共性。

安装大型线性设备可以改变不同空间之间的性质,通过彩色的面板和可移动的家 具,使曾经刚硬局限的空间变得灵活可爱。


多功能工作台支持各种操作,例如电器、照明等等,所有组件都经过精心设计,再将其组装成一个重要模块。


线性的干预创造了一个独特的生活环境,11.8米长的空间,可以当做书房、储物间、设备间和烹饪区域,同时通过内部基础设施和设计展现多元化的空间,在各种使用场合下,可以让不同空间不同层级相互交织。

做饭的时候打开面板,工作的时候关上面板,根据不同场合移动家 具,使空间功能更加丰富。

世界上最有价值的东西就是一个充满活力的灵魂,只要你想做,任何你的想法都可以变为现实,就像从前没人可以做到移动空间,可是现在却越来越多人有这样的想法一样。
什么,装修还用自己的钱?!齐家装修分期,超低年利率3.55%起,最高可贷100万。立即申请享受优惠
