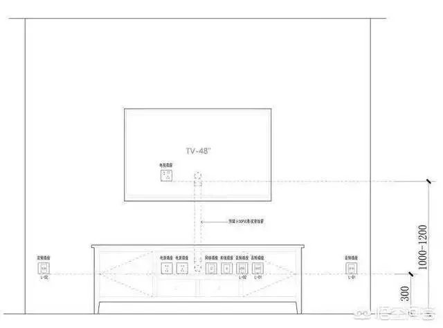
电视墙插座布置
1.首先确定电视是挂在墙上,还是放在电视柜上。从而确定电视附近的插座布置。通常比较多的布置方式是,电视附近的插座,如果是挂在墙上的,插座布置在电视柜的紧上方,便于插拔。一般设置九孔插座即可,如有音响功放系统,则按需增加。同时需要布置网线插座一个。有线电视插座一个(现在年轻人都不用)。

2.如果是壁挂电视,可以安装50管,通过50管将电源线网线等暗藏在墙体内,比较美观,避免看到一堆线。也可以将直接插座布置在上方,让电视挡上,也比较美观,一般设置在电视的两侧。


如果所需要的插座比较多,一般是左弱电,右强电。强电是指220V交流电源插座,弱电是指网线,有线电视,电话,音响插座。

但是目前做50管的比较少,壁挂电视插座更多的是直接设置在电视挂置区,让电视挡上。
3.那也有不少人选择将电视插座设置在电视柜后面,这种看上去比较美观,在实际使用中,插拔不放便,同时插头线容易在长时间折弯情况下老化,受损。同时电视柜与墙面之间的缝隙很容易积灰,掉东西进去。

4.也有人将电视插座设置在电视挂置区的正下方,紧挨电视,外露的线比较少,也比较美观。

5.对于插座的选择,我们一般选择多个五孔插座,一个九孔插座,搭配弱电插座。也可以选择集成插座。

对于布线来说,一般强电线路和弱电线路要间隔至少30厘米,避免弱电的信号受到强电的干扰。

6.一般我们的电视墙上,还会在电视柜的两端,或者电视墙的两端预留五孔插座,备用,作为临时或者后期增加设备的电源。同时空调,后期可能得智能设备考虑进去。

限时折扣:79元

如果是投影仪,也需要考虑,尤其是电动投影布,和挂置在吊顶上的投影仪,需要在顶面留插座。

