房子装修情况:
装修户主:zjq_kai
装修面积:建筑面积50平米,使用面积35平米
装修户型:一室户
装修风格:北欧风格
装修费用:硬装6万,大概费用人工费:15000 硬装辅材:15000 硬装主材:30000
装修方式:清包
装修关键词:小户型装修 一居室装修 老房翻新宜家ikea储藏室

建筑面积50平的二手房,因为是高层,实际使用面积差不多只有35平。屋主是一位文艺小资范的单身女性,选择了一室户开放式的北欧风格。把卧室的床架高,下面开辟了一个储藏室。白色、原木加上宜家ikea的家具和饰品,让这个小公寓完全呈现出宁静的北欧气息。

进门处,简单的设计,宜家的挂钩和穿衣镜。

进门墙面特写,小小的鞋柜对于一个人来说足够了,其他的鞋收进了储藏室的大鞋柜中。

客厅、工作区和阳台全貌。白色的布艺沙发和茶几,搭配民族风的抱枕和地毯。电视背景墙是一面收纳柜兼展示柜。

电视背景墙的柜子以及边上的简单装饰。

沙发区域靠墙角的地方设置了工作区,借着阳台的自然采光,位置很好。

工作区特写,书桌、柜子以及墙面的小搁板,空间虽小,合理利用之后会发现功能基本都可以满足。

书桌上的小景

阳台一角,宜家ikea的布置。

阳台墙面装饰

再来看沙发边的小卧室,层高2.7米,为了多一点收纳空间,把床下面做成了储藏室。边上的台阶也做成了收纳柜,美观更实用。

床靠进门处事顶强的柜子,放鞋和衣物。

衣柜

这是床下面的储藏室,稍矮一些。

进门处的小空间做了小餐厅,黑白照片墙和白色的餐桌椅,简洁大方。

厨房,橱柜是定做的。

卫生间,地面时典型北欧风的黑白地砖,整个空间简洁舒适又实用。

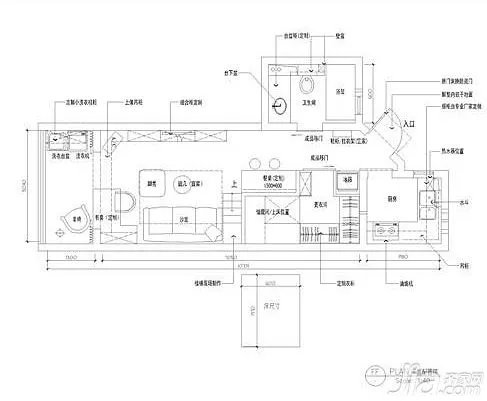
户型图
推荐阅读:
自主改造96年老房 打造2室1厅宜家收纳家
艳丽复古家 宜家淘宝搭建起来的94平两居
宜家控的春天 85平温馨时尚小三房装修
什么,装修还用自己的钱?!齐家装修分期,超低年利率3.55%起,最高可贷100万。立即申请享受优惠
